I. Overview of Hidden Arm Coal Powder Sampling Device
The concealed arm coal powder sampling device is a specialized equipment used for coal powder sampling on the primary air conveying pipeline of a positive pressure straight blowing mill system. During the daily operation of the coal mill, changes in the wear of the grinding parts, coal type, and particle size will significantly affect the fineness of the coal powder, which directly impacts the boiler combustion efficiency and increases power generation costs. Therefore, regular sampling and testing of the coal powder fineness are necessary. When the coal powder fineness exceeds the designed value, timely adjustments or replacements of the coal mill grinding parts or the adjustment of the separator deflector opening are required to achieve the desired coal powder fineness.
Accurate control and analysis of the fineness of coal powder in power plant coal-fired boilers is of great significance for the safe and economic operation of boiler units. Currently, the application of positive pressure direct blowing pulverizing systems in large units is increasing. Due to the coal powder at the mill outlet being directly blown into the furnace for combustion by primary air under positive pressure, it is very difficult to collect coal powder samples on a daily basis. Generally, the self-spray method is used, which has poor accuracy and often fails to seal properly during sampling, leading to coal powder leakage and an extremely poor working environment with high labor intensity. With decades of experience in gas-solid two-phase flow theory, experimental, and engineering application research, Huaneng Power Auxiliary Equipment has developed a new overhead coal powder sampling device. This device facilitates the isokinetic sampling of coal powder in positive pressure direct blowing pulverizing systems, with its key feature being simultaneous isokinetic sampling at multiple points, ensuring a well-representative sample with good repeatability after multiple samplings. The operation is simple, and there is no coal powder leakage, significantly improving the working environment and reducing labor intensity. It is currently the most ideal device for daily coal powder fineness analysis sampling in positive pressure direct blowing pulverizing systems for power plant boilers internationally.

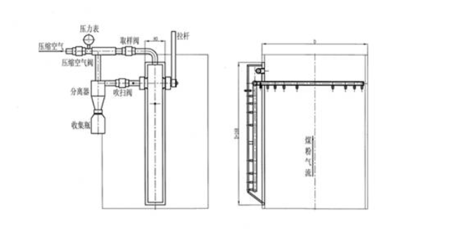
The swing arm coal powder sampling device, as shown in the attached figure, is primarily composed of a sampling tube installed centrally in the shell of the coal powder pipeline and an external air extraction and separation unit. The sampling tube can rotate around the pivot axis, rotating it to a perpendicular position to the pipeline during sampling, allowing the nozzle mounted on the sampling tube to face the coal powder airflow; after sampling, the sampling tube returns to a parallel position with the pipeline, avoiding the coal powder airflow to prevent wear; compressed air blowing is used to prevent coal powder from entering the shell and the center of the sampler, ensuring reliable operation with no maintenance required.
II. Performance Features of the Hidden Arm Coal Powder Sampling Device
Multiple simultaneous isokinetic sampling, convenient and quick, with good representativeness of the samples; fixed installation on the coal powder pipeline, rotate to the measurement plane during sampling, the sampling gun is kept outside the coal powder airflow during normal use, resulting in minimal wear and extended lifespan; compressed air blowing is used for cleaning, preventing clogging of the sampler.
Section 3: Major Components of the Hidden Arm Coal Powder Sampling Device
Equipment components include: sampling head, sampling tube, purge valve, sampling valve, external handle, separator, air valve, collection bottle, pressure gauge, sealed storage chamber, etc.
1. Sampling Head: Place the sampling head into the coal powder pipeline during sampling, with the sampling hole facing the direction of the coal powder gas flow; the gas-powder mixture enters the sampling device through the sampling hole.
2. Sample Tube: The gas-powder mixture taken by the sampling head is delivered to the cyclone separator through the sample tube.
3. Blow-off Valve: Before and after each sampling, open the blow-off valve to use compressed air to blow clean the sampling pipeline, preventing it from being blocked by coal powder.
4. Sampling Valve: During sampling, adjust this valve to create a vacuum at the exhaust outlet using compressed air, which draws air from the separator. This allows coal dust in the duct to enter the sampling device through the sampling hole.
5. Separator: Performs solid-gas separation, with the process as follows: Coal powder is thrown to the inner wall of the separator by the rotating air stream, and due to its own gravity, falls into the collection bottle; the gas flows along the wall from top to bottom to the bottom, then rises to the top in the middle, and is discharged through the exhaust outlet.
6. Sample Collection Bottle: A container used for collecting and storing solid coal powder samples separated by the separator.
7. Pressure Gauge: Displays pressure data for the air pressure regulating valve.

Section 4: Working Principle of the Hidden Arm Coal Powder Sampler
1. Sampling Principle: The concealed arm coal powder sampler employs the principles of negative pressure suction and cyclone separation to extract the gas-powder mixture from the coal powder pipeline and achieve solid-gas separation. During the sampling process, the sampling tube is extended into the coal powder pipeline, with all valves in the open position. As compressed air passes through the exhaust pipe and the ejector vacuum pump, its jet action inevitably creates negative pressure in the cyclone separator, sampling tube, and sampling bottle components, prompting the gas-powder mixture in the coal powder pipeline to flow into the sampler through the sampling tube. The gas-powder mixture undergoes solid-gas separation in the cyclone separator, with the separated coal powder falling into the sampling bottle beneath the separator, and the gas being suctioned back into the coal powder pipeline by the compressed air, without causing any workplace pollution. Adjusting the pressure regulating valve for the compressed air before sampling allows for isometric sampling, ensuring that the collected coal powder sample is representative. (The compressed air pressure generally does not exceed 0.1 Mpa.)
2. Anti-blocking Measures: Compressed air can be used to blow clean the sampling tube during equipment operation to prevent it from being blocked by coal powder.
3. Abrasion Prevention Measures: When not sampling, the sampling tube is concealed within the housing and placed outside the coal powder pipeline. During sampling, pull the sampling operation lever to extend the sampling tube into the coal powder pipeline, with the sampling port facing the incoming coal powder airflow. Open all valves to begin sampling. After sampling, pull the sampling operation lever again to hide the sampling tube back within the housing, placing it outside the coal powder pipeline to prevent the coal powder airflow from washing over the tube, thereby achieving abrasion prevention.
Section 5: Instructions for Ordering Hidden Arm Coal Powder Sampling Device
Provide coal powder pipeline diameter for designing the sampling gun length.


































